- 65428 Rüsselsheim
- Kaufpreis275.000,00 €
- Provisionprovisionsfrei inkl. MwSt.
- Wohnfläche77,0 m²
- Anzahl Zimmer 3,5
- Objektnummer 386423
Objektbeschreibung
Objekttitel
Renovierte 3,5-Zimmer-Eigentumswohnung in Rüsselsheim
Objektbeschreibung
Die 3,5-Zimmer-Eigentumswohnung befindet sich im 4. Obergeschoss eines gepflegten Mehrfamilienhauses in Rüsselsheim. Das Gebäude wurde 1976 erbaut, die Wohnung selbst wurde vollständig kernsaniert und renoviert. Sie befindet sich in einem sehr gutem und bezugsfertigen Zustand.
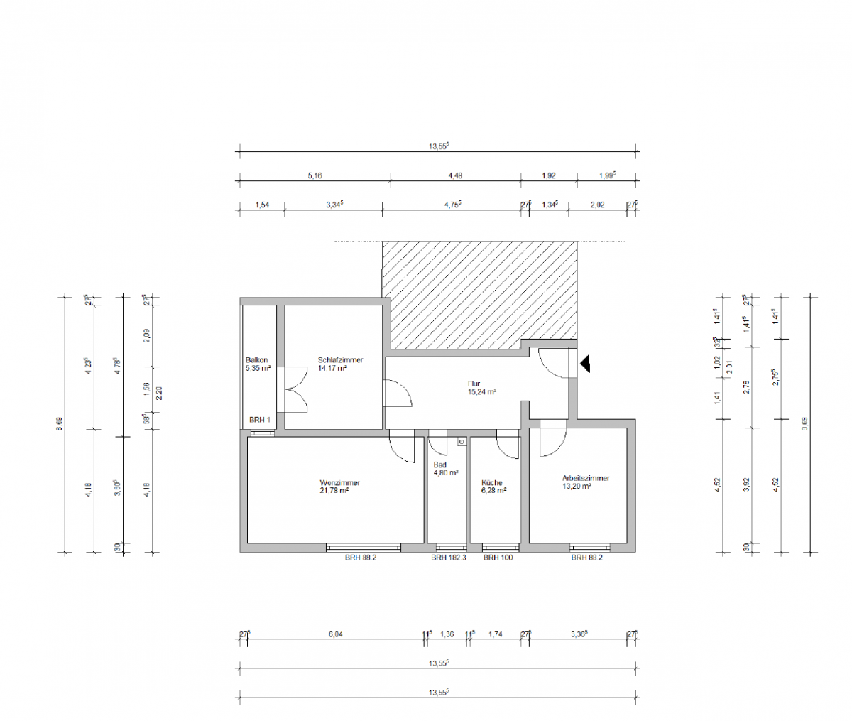
Die Wohnung verfügt über eine Wohnfläche von ca. 77 m² und bietet einen praktischen Grundriss mit einem hellen Wohnzimmer, zwei Schlafzimmern, einer separaten Küche, einem modernen Tageslichtbad mit Dusche sowie einem Balkon mit zwei Zugängen.
Es wurden hochwertige Bodenbeläge aus Laminat und Fliesen verlegt. Das Tageslichtbad wurde vollständig neu gestaltet und ist mit einer Dusche, modernen Sanitärobjekten und zeitgemäßer Ausstattung versehen.
Zur Wohnung gehören ein Kellerraum, ein Außenstellplatz sowie ein Garagenstellplatz.
Die Wohnung ist sofort bezugsfrei.
Sie eignet sich ideal für Eigennutzer oder Kapitalanleger, die eine gepflegte, modernisierte Immobilie in guter Lage von Rüsselsheim suchen.
Ausstatt_beschr
Komplett kernsaniert (renoviert)
Hochwertige Bodenbeläge aus Laminat und Fliesen
Modernes Tageslichtbad mit Dusche
Balkon mit zwei Zugängen
Kellerraum
1 Außenstellplatz und 1 Garagenstellplatz inklusive
Sofort bezugsfrei
Lage
Die Wohnung liegt in Rüsselsheim, in einer gut angebundenen Wohngegend. Einkaufsmöglichkeiten, Ärzte, Apotheken, Schulen und Kindergärten befinden sich in der näheren Umgebung.
Die Rüsselsheimer Innenstadt mit weiteren Geschäften, Gastronomie und Freizeitangeboten ist in wenigen Minuten erreichbar. Grünflächen und Spazierwege in der Umgebung bieten zusätzliche Erholungsmöglichkeiten.
Die Verkehrsanbindung ist sehr gut: Über die Autobahnen A60 und A67 sind die Städte Frankfurt, Wiesbaden, Mainz und Darmstadt schnell erreichbar. Der Bahnhof Rüsselsheim mit S-Bahn-Anschluss sorgt zudem für eine gute Anbindung an den öffentlichen Nahverkehr.
Sonstige_angaben
Auszug aus unseren AGB`s:
§ 7 Haftung: Alle Angaben zum Objekt basieren auf erteilten Auskünften und Informationen Dritter. Für die Richtigkeit oder Vollständigkeit der Angaben kann deshalb keine Haftung übernommen werden. Die versandten Exposés und sonstigen Unterlagen stellen lediglich eine unverbindliche Vorabinformation dar. Die Haftung von Gasper Immobilien ist ausschließlich auf vorsätzliches oder grob fahrlässiges Verhalten beschränkt. Diese Haftungsbeschränkung gilt nicht im Falle der Haftung für Schäden aus der Verletzung des Lebens, des Körpers oder der Gesundheit.
Ausstattung
- Bad
- Dusche, Fenster
- Bodenart
- Fliesen, Laminat
- Heizungsart
- Zentral
- Befeuerung
- Öl
- Fahrstuhl
- Personen
- Stellplatzart
- Tiefgarage, Außenstellplatz
- Kabel/SAT TV
- Dvbt
- Breitband Internet
- UMTS Empfang
- Abstellraum
- Fahrradraum
Energiepass
- Energieausweistyp
- Verbrauchsausweis
- Gültig bis
- 11.09.2028
- Energiekennwert
- 125,97 kWh/(m²*a)
- Mit Warmwasser
- Ja
- Energieträger
- Öl
- Energieeffizienzklasse
- D
- Geltende EnEV
- 2014
- Gebäudeart
- Wohngebäude
Kontaktperson
- Firma
- Gasper Immobilien
- Vorname
- Caroline
- Name
- Schneider-Hewener
- Strasse
- Mathildenstr. 3
- PLZ
- 65479
- Ort
- Raunheim
- Email Zentrale
- gasper-immobilien@t-online.de
- Telefon Zentrale
- +49 6142 46869
Anfrage zum Objekt:
Immobiliendetails
- Objektnummer
- 386423
- Vermarktung
- Kauf
- Objektart
- Wohnung, Etage
Kosten
- Kaufpreis
- 275.000,00 €
- Provision
- provisionsfrei inkl. MwSt.
Flächen
- Wohnfläche
- 77,0 m²
- Anzahl Zimmer
- 3,5
- Anzahl Schlafzimmer
- 2,0
- Anzahl Badezimmer
- 1,0
- Anzahl Stellplätze
- 2,0
- Anzahl Balkone
- 1,0
Zustand
- Baujahr
- 1979
- Zustand
- Teil/Vollrenoviert
- Frei ab
- sofort






